This meeting was held on-line via Zoom.
The following participated:
OISTAT Head Quarters:
Yi Shan Lai Taiwan
Wanjung Wei Taiwan
Members and Guests:
Kate Burnett UK
Larry Busch Austria
Joshua Dachs USA
Tim Foster UK
Jenni Hall UK
Peter Ruthven Hall UK (vice-chair)
Gabriele Högg Germany
Wes Jenkins Canada
Jerome Maeckelbergh Belgium
Peter McKinnon Canada
Torsten Nobling Sweden
Mhora Samuel UK
David Staples UK
Maaike Westinga Netherlands (chair)
Selma Goker Wilson USA (vice-chair)
Apologies:
Nil
1.0 Introduction
Maaike introduced the meeting and the topics for discussion.
2.0 Jenny Hall (Jennifer Ann Hall) Presentation
Architect based in Mid-Wales introduced her gold award winning entry in the Professional Space and Object category of World Stage Design 2025 at Sharjah.
https://www.craftedspace.co.uk/artworks/bodo
Midsummer Mystery was a public celebration in Bodø in Norway, an installation that was built and exploded in front of the audience!

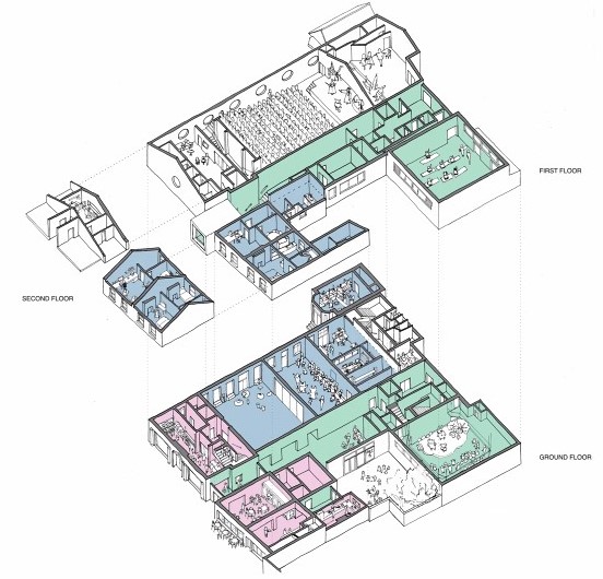
3.0 Tim Foster spoke about designing Polka Theatre, Wimbledon, south London, UK

Tim was a partner at Foster Wilson Size (architects) prior to retirement.
Commissioned 2009, completed 2021, with lots of waiting along the way as well as working through Covid.
Approx. £4.5m.
Theatre ambition grew while ability to fund reduced!
The original theatre was converted in 1979 from a former church hall.
There was a lack of engagement with the street.
The project expanded sideways into two shops and into land released by demolition of an annexe used for creative learning.
The side extension connects all existing and replaced the annexe.
Main theatre seating 300 given a light touch refurbishment, with a new ‘early years’ theatre to side and rear, with rehearsal space on top (with good sound separation).
All public-facing activities were moved to the front. Lift linking all areas. Red canopy to front designed as a ‘flying carpet’ linking the disparate buildings and offering a striking front elevation.
Outdoors spaced include planted garden and paved area and courtyard play area with soft surface.

Unusually, Tim collaborated on interiors with stage designer Laura McEwen but said is was a very happy experience.
4.0 Jenny Hall asked the meeting for some ideas and guidance
An engaging discussion ensued. She wants to create a small outdoor stage in a walled Victorian garden in South Wales which she is currently refurbishing. The weather is often wet. Lots of suggestions were offered.
Yogyakarta Mangunan Pine Forest
Vienna Virginia Wolf Trap Center
Vienna Theater im Park
Amsterdamse Bos
Houghton Festival
Thorington Theatre
Wormsley Walled Garden Theatre
Foshan City Beijiao Town Flower Field Bamboo Pavilion
Charleston House
NYC park
Pitlochry Festival theatre amphitheatre
Joshua Dachs offered a historical reference of Cornaro Loggia
https://www.google.com/search?sca_esv=c2c010e8b6a19da9&rlz=1C1RXQR_enUS1189US1189&sxsrf=ANbL-n6c7YJ5JFCDxWlGqpo1mT6UAJalXA:1772809181852&udm=2&fbs=ADc_l-aN0CWEZBOHjofHoaMMDiKpaEWjvZ2Py1XXV8d8KvlI3o6iwGk6Iv1tRbZIBNIVs-6UIUc6UR6SuJFZzmDZDaBC4CrOGe_r1IzCvIWPeT0fHLbWonaMN665KUCeWPRJOX756uy31yTTsRhURaqe9uXOl6Hl3Jkm1PBl-J91LWaPqr1sRuwsD5XoEjDJ6-aUxjtk0Hx4Cp9ueg1jp7wEUEDMIH8Diw&q=Cornaro+Loggia&sa=X&ved=2ahUKEwj0xafsxIuTAxUwAHkGHbenFfsQtKgLegQIDBAB&biw=1920&bih=911&dpr=1#sv=CAMSVhoyKhBlLWlVdnZUb25kVWVhX1BNMg5pVXZ2VG9uZFVlYV9QTToOc2tTUnZzcHFXb0N5RU0gBCocCgZtb3NhaWMSEGUtaVV2dlRvbmRVZWFfUE0YADABGAcg7_PR4gowAkoIEAIYAiACKAI

Sketch of the site
5.0 Turkey – Antique Theatres, Thursday 10 to Sunday 13 September 2026 (travel before/after)
26 have confirmed with tour operator OASIS. There are only 4 places available, but a larger tour bus may be possible if there is a surge in uptake.
Please make your travel plans and advise arrivals and operator. This will help with planning.
Selma hopes to have an actor from the National Theatre join the tour to speak line at each theatre for us to appreciate the acoustic and spatial characteristics of the each.
Selma with travel agent Oasis Travel to coordinate the trip which will start with a dinner on Wednesday and conclude with a performance in Aspendos on Sunday. Arrive Izmir airport (Wednesday) and depart Antalya airport (Monday). Internal flights to international airports are operated by Pegasus and AJet.
Considered a low risk of disruption by middle east war but the situation may change and is being monitored.
Izmir
Ephesus
Priene
Hierapolis / Pamukkale
Phaselis
(stop at Tim Foster’s House)
Perge
Antalya
Aspendos including a performance of Aida at the festival
See the map, outline costs and details on OISTAT Basecamp. Participants would fund their own travel to and from Turkey with a charge made for guide, coach, hotels and entry tickets. Cost for tour operator around $1,000-$1,150 depending on single/double rooms with dinner and performances extra.
Next payment is due in June.
6.0 Future Meetings and Activities
Zoom Meeting Friday 12 June 2026 15.00-17.00 Central European Time.
Thursday 10-13 September 2026 Turkey Visit.
Zoom Meeting Friday 11 December 2026 15.00-17.00 Central European Time.
• 2027 Finland
Janne hopes to offer a meeting in Finland.
• 2027 Bergamo
Marcello hopes to offer a meeting in Bergamo.
• 2028 Dutch Tour
Maaike would like to reorganize this tour postponed from 2020.
Suggestions to increase participation are always welcomed so please assist by raising the profile of the AC in your own country. AC activities are open to anyone with an interest in theatre buildings.
Presentations
Sharing our work and knowledge is an important part of the activities from AC. If you have anything to show, share or discuss don’t hesitate to let us know. The size of the project is not an issue at all.
Finding new AC members
Please continue to spread the word and invite colleagues and other interested individuals to participate in the online meetings and AC activities. Also, when joining a theatre visit, please invite younger colleagues to join you. Proposed theatre visits should be popular with a wider community.
All members are requested individually to fill in the form.
https://docs.google.com/forms/d/e/1FAIpQLSfwnh0KWShYn0VJUfVArgqnMjV7z0MTalrT8n539tOXfFIyog/viewform
Notes compiled by Maaike Westinga with Peter Ruthven Hall
For questions, suggestions or to schedule a presentation:
ruthvenh@gmail.com / maaike@tenbraswestinga.nl